HOME DESIGN

Design Homeplan : $ Title

Modern 101

NEW

บ้านสไตล์ Modern สมัยใหม่ มาพร้อมด้วย ห้องนอน 3 ห้อง ห้องน้ำ 3 ห้อง และโดดเด่นด้วย ห้องรับแขกที่กว้างขวาง พื้นที่ทานข้าว Double Space สูงถึงชั้นสอง /Pantry /ครัวไทย และพื้นที่ห้องพระ

พื้นที่ใช้สอย / Area (m²) : 216.00
จำนวนชั้น / Story : 2
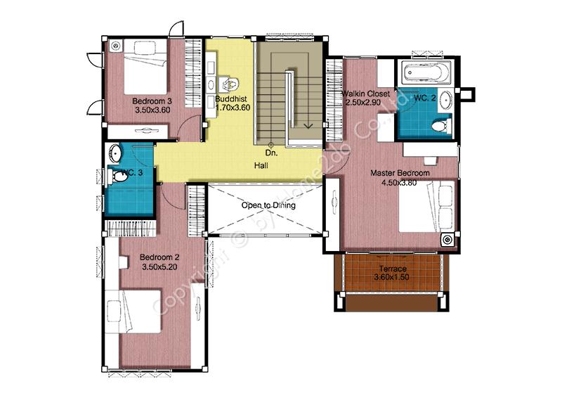
ห้องนอน / Bedroom : 3
ห้องน้ำ / W.C. : 3
ที่จอดรถ / Car Parking : 1
Design Homeplan : $ Title First Floor Plan
Design Homeplan : $ Title Second Floor Plan

ขนาดตัวบ้าน

House Size

13.00 m. X 11.50 m.

ราคาแบบ

Drawing Price

รายละเอียดด้านล่าง

ราคาก่อสร้าง

Construction Cost

3.35 ล้าน ฿

* เริ่มต้น (Start)

รายละเอียดแบบและราคา

แบบร่าง

6500 ฿

แบบร่างผังพื้นทุกชั้น , รูปด้าน 4 ด้าน และ PERSPECTIVE 1-3 มุม (ขึ้นกับแบบ) จำนวน 1 ชุด โดยให้เป็น PAPER และ PDF FILE

แบบขออนุญาต

34900 ฿

แบบพิมพ์เขียว สำหรับขออนุญาต, ขอกู้ธนาคาร และให้ผู้รับเหมาเสนอราคา ประกอบด้วย

  • แบบสถาปัตยกรรม ผัง รูปด้าน รูปตัด และรายละเอียดแบบขยายงานสถาปัตยกรรมแสดงรายละเอียดวัสดุอาคาร และแบบขยายต่างๆ
  • แบบผังวิศวกรรมโครงสร้างพร้อมแบบขยาย, แบบงานไฟฟ้า และสุขาภิบาล
จำนวนท 5 ชุด ชุดละประมาณ 30-60 แผ่น (ขึ้นกับแบบ)

Complete Set

38500 ฿

แบบพิมพ์เขียว สำหรับขออนุญาต, ขอกู้ธนาคาร และให้ผู้รับเหมาเสนอราคา ประกอบด้วย

  • แบบสถาปัตยกรรม ผัง รูปด้าน รูปตัด และรายละเอียดแบบขยายงานสถาปัตยกรรมแสดงรายละเอียดวัสดุอาคาร และแบบขยายต่างๆ
  • แบบผังวิศวกรรมโครงสร้างพร้อมแบบขยาย, แบบงานไฟฟ้า และสุขาภิบาล
จำนวน 7 ชุด พร้อมลายเซ็นต์รับรองการออกแบบของสถาปนิก และวิศวกร

หมายเหตุ

  • ราคาเฉพาะแบบมาตรฐาน ไม่รวมการปรับแก้ไขแบบ
  • ต้องการปรับแก้ไขแบบกรุณาติดต่อ 02-861-5580 หรือ e-mail: sales@home2do.com ได้ในวันและเวลาทำการ
  • เพิ่มพิมพ์เขียวชุดละ
    500 ฿